NOWE MIESZKANIE 76m2 + poddasze w JAŚLE
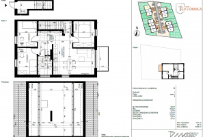
Osiedle Kwiatowe to miejsce dla wymagających. Unikalny design, dogodna lokalizacja oraz funkcjonalne mieszkania dla rodzin zlokalizowane w ramach kameralnej zabudowy stanowią idealne miejsce do życia. Ponad 25 letnie doświadczenie w budownictwie daje nam okazję do projektowania oraz budowania mieszkań, w jakich sami chcemy żyć. OSTATNIE, GOTOWE DO ODBIORU MIESZKANIE Oferujemy Państwu mieszkanie zlokalizowane na pierwszym piętrze z poddaszem oraz miejscem postojowym. W skład mieszkania wchodzą: - klatka schodowa 9,8m2, - hol 10,3 m2, - łazienka - 4,7 m2, - salon z aneksem kuchennym 21,6 m2, - sypialnia I 10,3 m2, - sypialnia II 9,3 m2, - sypialnia III 9,7 m2. Łączna powierzchnia mieszkania: 75,7 m2 Powierzchnia poddasza: 60 m2 Powierzchnia balkonu: 5 m2 Powierzchnia miejsca postojowego: 12,5 m2 Dogodna lokalizacja i dobra komunikacja W doborze idealnego miejsca do zamieszkania kluczowa jest lokalizacja. Osiedle Kwiatowe zlokalizowane są w niedalekiej odległości od węzła obwodnicy jak również rynku w Jaśle, dzięki czemu w krótkim czasie znajdziesz się w dowolnym miejscu Jasła i jego okolic. Odległość do rynku w Jaśle: 2,5km (5 minut samochodem) Odległość do Przystanku Kwiatowa (punktu rekreacyjnego): 900m (8 minut pieszo) Odległość do szkoły podstawowej: 1km (10 minut pieszo) Odległość do Kościoła w Sobniowie: 600m (5 minut pieszo) Odległość do obwodnicy miasta Jasła: 1,3 km (2 minuty samochodem) możliwość dojazdu do Krosna Standard wykonania (deweloperski), w tym instalacja elektryczna, wod-kan-co-gaz, klimatyzacja, tynki, wylewki, elewacje, zagospodarowanie terenu (ogrodzenie, zieleń, powierzchnie utwardzone). Możliwość dokupienia drugiego miejsca postojowego. Jeśli chcesz uzyskać więcej informacji, skontaktuj się z nami: tel: 502 695 166 (Michał) Umów się na spotkanie w biurze lub na budowie.
Cena: 429000
KONTAKT
502695166
Kontaktując się powołaj się na krosno24.pl
Ogłoszenie nr 1579738 | dodane przez: grupa_tektonika
ważne od: 24.10.2025 do: 21.11.2025
Ogłoszenie pochodzi z portalu Krosno24.pl