DOM 1/2 BLIZNIAK W CENIE MIESZKANIA
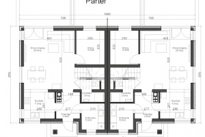
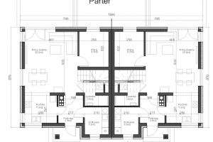
Zapraszam do zapoznania się nowej oferty DOM W CENIE MIESZKANIA. Na sprzedaż udział 1/2 w rezerwacji, budowa dom wolno stojący, dwu-lokalowy w drugiej linii zabudowy w Krośnie, centrum dzielnicy Polanka. Cena indywidualnie negocjowana. To idealna propozycja dla osób poszukujących domu parterowego z poddaszem użytkowy, w formie bliźniaka. Charakterystyka budynku: z użytkowym poddaszem, dom wolnostojący dwu lokalowy, typu bliźniak. Niepodpiwniczony, z dachem dwuspadowym, południe – północ. Budynek o powierzchni 181,2 m² przeznaczony jest dla 4-6 osobowej rodziny w każdym z dwóch lokali. Zaprojektowano go na planie prostokąta i przykryto dwuspadowym dachem o kącie nachylenia 40°. Kominek: tak. Projekt dostosowany do montażu fotowoltaiki, strona południowa. Prosta bryła tego budynku, sprawia ze jest niedrogi eksploatacji. Nieruchomość o powierzchni 12 ar. (1189 m2). Przeprowadzony podział geodezyjny przypisuje dla każdego budynku, działka 5 arów, (500 m2). Własność hipoteczna. Działka ma regularny kształt o wymiarach 32 m – 33 m., teren płaski, uporządkowany, ogrodzenie płot metalowy. Dostępne media w miejscu: prąd, gaz, woda, kanalizacja miejska. Bezpośredni wjazd na działkę szerokości około 3,6 m. Lokalizacja budynku, działka słoneczna z dala od zgiełku miasta. Dobrze skomunikowana z centrum dzielnicy. Na atrakcyjność tej lokalizacji niewątpliwy wpływ ma bliska odległość do szkół przedszkoli, jednostek służby zdrowia, obiektów handlowych czy użyteczności publicznej zlokalizowanych w tej część. Przystanki, miejska komunikacja, wszystko w odległości niespełna 350 m. Okolica cicha, bezpieczna  spokojna. W sąsiedztwie luźna zabudowa domów jednorodzinnych. Budowa budynku prowadzona jest w oparciu o indywidualny projekt architektoniczny, który został specjalnie wykonany i dopasowany do warunków i ukształtowania terenu. Opis budynku: Podział pomieszczeń na parterze. Projekt domu to lustrzane odbicie dwóch oddzielnych lokali. Każdy z nich został podzielony na część dzienną na parterze i część sypialną na poddaszu. Parter każdego lokalu stanowi pokój dzienny 25 m², z miejscem na stół jadalny oraz kuchnia o powierzchni 7,3 m². Do domu wchodzimy przez wiatrołap o powierzchni 4,8 m², z którego można przejść do kotłowni/druga łazienka. Atutem tego układu pomieszczeń jest fakt, że z wiatrołapu możemy przejść także bezpośrednio do kuchni. Na parterze zaprojektowano również dodatkowy pokój od strony ogrodu. Może on pełnić rolę gabinetu, sypialni lub np. pokoju gościnnego. Oprócz tego, na parterze znajduje się łazienka o powierzchni 3,4 m². Podział pomieszczeń na poddaszu, to powierzchnia niemal 40 m². Na tej kondygnacji zaprojektowane zostały trzy sypialnie: 7,2 m², 9,3 m² i 10 m². Funkcjonalne poddasze dopełnia dodatkowa, wygodna łazienka. Na powierzchni 6,2 m² znajdzie się miejsce zarówno na wannę, jak i prysznic. Komunikację między wszystkimi pomieszczeniami na poddaszu zapewnia przedpokój 4,4 m². Taras wokół domu. Każdy z lokali ma również swój oddzielny i niezależny taras. Umieszczone one zostały w dwóch rogach budynku, tak by maksymalnie odseparować od siebie sąsiadów korzystających z tej przestrzeni. Bezpośrednie wyjście na taras mamy z pokoju dziennego. Jednocześnie przeszklenia drzwiowe doświetlają wnętrze domu. Pokój dodatkowy na parterze również ma okna od strony ogrodu, podobnie jak dwie z trzech sypialni na piętrze. Dzięki temu, domownicy po zaaranżowaniu ogrodu wokół domu, będą mogli cieszyć się pięknymi widokami za oknem. Ogrzewanie: Dom ma zaplanowaną możliwość ogrzewania niezależnie od wybranego rodzaju. Budynek należy do tanich w utrzymaniu, z uwagi na użyte technologie. Ściany murowane pustak 24 cm, zewnętrzne ocieplenie wełna mineralna o grubości 15 cm. Dach: więźba dachowa drewniana, kryty blachą. Technologia: budynek murowany, użyto do budowy bloczki pustakowe typu leka z keramzytu. Styl: nowoczesna elewacja i wystrój wewnątrz. Zaprojektowano niezależne przyłącz techniczne dla każdego budynku. Dodatkowo na działce zaprojektowane zostały cztery miejsca postojowe dla samochodów, zgodnie z wymogami architektonicznymi. I przepisami prawa budowlanego. Możliwości uzyskania zezwolenia na budowę budynku gospodarczego, wiaty garażowej itp. W zależności od planów zagospodarowania przez nowego właściciela. Sprzedaż obejmuje całość nieruchomości lub niezależnie ½ inwestycji, z geodezyjnym i architektonicznym podziałem nieruchomości, na dwie działki dla każdego budynku o pow. 5 arów. Aktualnie prowadzone są prace budowlane. Zapraszam do obejrzenia w terenie po telefonicznym uzgodnieniu. Na s-esy nie odpowiadam. UWAGA ! Treść niniejszego ogłoszenia nie stanowi oferty handlowej w rozumieniu Kodeksu Cywilnego, (art. 66 k. c.).
KONTAKT
511 431 882 bogdana44@gmail.com
Kontaktując się powołaj się na krosno24.pl
Ogłoszenie nr 1579021 | dodane przez: bogus
ważne od: 26.11.2025 do: 24.12.2025
Ogłoszenie pochodzi z portalu Krosno24.pl