NOWE MIESZKANIE W SZCZEPAŃCOWEJ
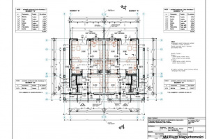
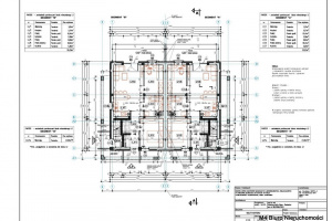
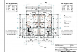
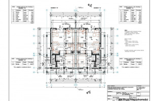
POZNAJ SWOJE PRZYSZŁE MIESZKANIE NA "OSIEDLU KWIATOWYM W SZCZEPAŃCOWEJ. Mamy przyjemność zaprezentować Państwu na sprzedaż atrakcyjne nowe mieszkanie w miejscowości Szczepańcowa. Mieszkanie idealnie dopasowane do potrzeb rodziny ,która marzy o własnym mieszkaniu bez czynszu . Mieszkanie o pow.55,23 znajduje się na parterze składa się z 2 pokoi, salonu z aneksem kuchennym i łazienki oraz dodatkowo posiada duży taras przed mieszkaniem. Ogrzewanie gazowe .Jest również możliwość zastosowania innego źródła energii wedle życzenia przyszłego Właściciela mieszkania. Do mieszkania prowadzi bezpośredni zjazd z drogi publicznej, przyporządkowane są 2 miejsca parkingowe oraz ogród . Na tym etapie realizacji istnieje możliwość utworzenia mieszkania II poziomowego. Atutem jest lokalizacja, bardzo wygodnie i szybko można dojechać własnym środkiem transportu lub komunikacją publiczną do Centrum Krosna. W kilka minut można dotrzeć do marketów, galerii handlowych i zrobić wygodne zakupy. "OSIEDLE KWIATOWE" położone jest w bardzo cichej okolicy w bezpiecznej odległości od ruchliwych dróg co pozwala cieszyć się śpiewem ptaków i szumem drzew. Mieszkanie znajduje się z dala od blokowisk, w sąsiedztwie dominuje luźna nowoczesna zabudowa jednorodzinna. Cena za stan deweloperski mieszkania na parterze wynosi od 400.000 zł . PROJEKT DOMU INDYWIDUALNY. PARTER ; 55,23 M2 1. Wiatrołap 3,01 2. Korytarz 3,27 3. Łazienka 5,58 4. Pokój 10,41 5. Pokój dzienny 18,41 6. Kuchnia 5,95 7.Pokój 8,60 Zadzwoń i umów się na prezentację. Z przyjemnością pokaże Ci to piękne miejsce! Kontakt z opiekunem oferty tel. 792954796
Cena: 400.000 zł
KONTAKT
M4 BIURO NIERUCHOMOŚCI KROSNO UL. WOJSKA POLSKIEGO 69A TEL. 792954796
Kontaktując się powołaj się na krosno24.pl
Ogłoszenie nr 1560058 | dodane przez: m4nieruchomosci
ważne od: 29.01.2026 do: 12.02.2026
Ogłoszenie pochodzi z portalu Krosno24.pl